NEW CASTLE ROCK BUILDERS HOME PLANS!
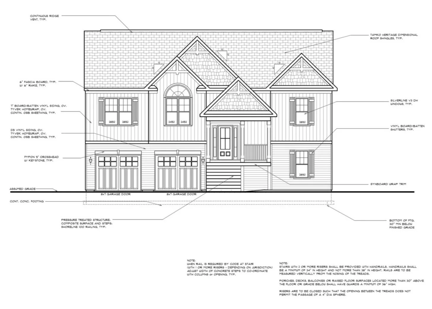
The “Sunny Side” a NEW Split Level Plan offered by Castle Rock Builders.
FRONT ELEVATION
MAIN LEVEL
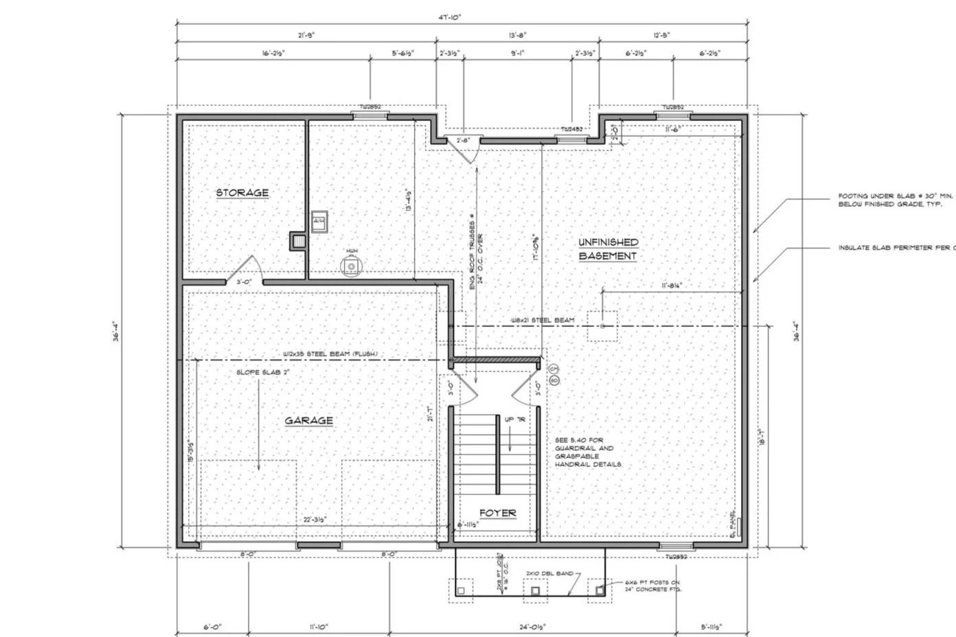
LOWER LEVEL
The “Sunny Side”, a VERY reasonably priced 3 bedroom, 2 1/2 bath, OPEN Split Level with 1,750 sq. ft. of finished space on the main living area. By opting to finish the lower level this would add 950 sq ft, bringing the total square footage to 2,700 sq ft. This plan is also easily modified to accommodate a side entry, 3 car garage. One of the best looking Split Level’s that we have ever seen!
We build on your lot. Castle Rock Builders will build on your lot-land OR we will tear down / demo your old home and build a new home. If you plan to build a Custom Home in Baltimore County, Carroll County, Harford County, Anne Arundel County, Howard County or Frederick County MD on your lot-land we need to talk!
Please call 410.864.0177 or EMAIL or TEXT or visit our CONTACT page to discuss building a Maryland Custom Home, on your lot-land, in much greater detail.
